Gordon’s Villa
This area will is short description of project, you can
select to show or hide it
select to show or hide it

Description
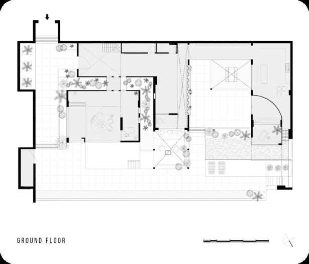
Nestled at the heart of Forest hill in Boston, there stood a villa that embodied a profound connection between the natural world & the comforts of modern living. This extraordinary abode was more than just a home, it was an immersive experience, a testament to the spirit of its surroundings.
Our design for the first phase office building creates 115,000sqft net of highly efficient, agile office space that provides unrivalled quality in Maidenhead.
services
Architecture Design,
Interior Design, Landscape
Design
Interior Design, Landscape
Design
location
Ecoriver Residence, Boston
MA 02108, US
MA 02108, US
Collaborators
Paul Architect, Stephan Architect,
Lawrence Landscape Designer,
BSI Constructor
Lawrence Landscape Designer,
BSI Constructor
status
Completed on
February 24th, 2024
February 24th, 2024



Challenge
Create an unconventional yet user-friendly website – innovative, with a clean and simple design that communicates brand values and showcases multi-media content. Site that spreads the message: "Islamic stories your child will love"
- • Develop easy-to-find and easy-to-navigate mobile friendly website
- • Showcase each type of content: interactive books, animated stories and picture books, audio stories.
Create an experience people want to share with others - • Persuade to download app and subscribe



Solution
Our approach was to present the site as a visual editorial platform with quarterly features based on events and occasions the brand was focused on. Each quarterly focus would be marked by the hero and custom tags that filter content.
what clients say
about us

hello@archin.coLet us help your dream
Let us help your dream
become reality










